8507 Twin Gables Drive Montgomery AL 36116

Price: $679,900 MLS # 574247 Status: Active

  • single_bed 4
  • bathtub 3
  • square_foot 3,407
  • home Residential - Single Family Residence
  • calendar_month 2025
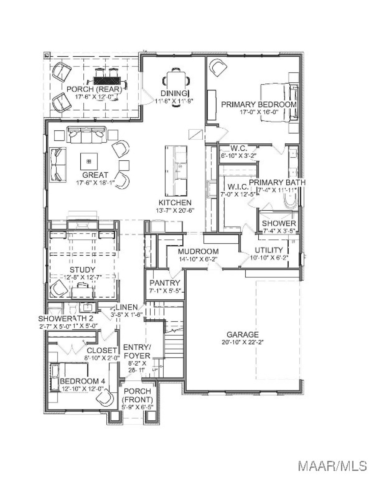
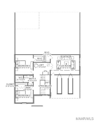
First Down to Your Dream Home with the help of Lowder New Homes! Offer valid on select homes and for a limited time only. Incentive includes $20,000 to be used towards buyer’s choice of available upgrades, financing options, or approved items through builder, plus $5,000 in closing costs when financing with a Lowder New Homes preferred lender. $5,000 closing cost contribution may not be combined with any other third-party lender credits. Incentives are subject to change or withdrawal at any time without notice. Some restrictions apply. See a Lowder New Homes representative for details. The Richmond I has 4 spacious bedrooms, 3 full baths, a study with a beautiful, coffered ceiling w/Glass pocket doors, a loft and a bonus room upstairs. As you enter the home you notice the 10-foot ceilings. Dining space is off the Kitchen. The Owners suite offers a large walk-in closet with a door that leads to the laundry/utility room and a stylish bath with a soaking tub and separate shower. Outdoor entertaining area features covered screened patio. Stunning front door. Dreamy kitchen fit for a Top Chef with a generous island and double stacked cabinets. A gas cooktop with a separate oven and a decorative hood vent, large Farmhouse sink, and pull-out trash can built in. A Morning Kitchen, Pantry, Wet bar with a sink and drink fridge are thoughtful features for a modern lifestyle. A laundry room that makes laundry fun and less of a chore with a mud hall entry way to drop all your personal belongings on the way in. You have the Owners suite plus an additional bedroom downstairs and 2 more bedrooms and bonus and loft area upstairs. Lowder New Homes offers a 10-year structural warranty from the industry’s leading home warranty company, 2-10 Home Warranty.
Hayden Hudson Owner / Broker
Hayden Hudson

(334) 467-1212
Email Directly

Features

  • County Montgomery
  • Property Sub Type Single Family Residence
  • Property Type Residential
  • Subdivision Sturbridge
  • Year Built2025
  • Appliances Dishwasher, Gas Cooktop, Disposal, Gas Oven, Gas Water Heater, Microwave, Plumbed For Ice Maker, Tankless Water Heater
  • Cooling Central Air, Ceiling Fans, Electric
  • Fireplace Features One, Factory Built, Gas, Gas Log, Ventless
  • Flooring Carpet, Plank, Tile, Vinyl
  • Heating Central, Gas
  • Interior Features Wet Bar, High Ceilings, Pull Down Attic Stairs, Walk In Closets, Kitchen Island
  • Levels Two
  • Living Area Source Plans
  • RoomsTotal15
  • Construction Materials Brick, Hardiplank Type
  • Exterior Features Porch
  • Foundation Details Slab
  • Garage Spaces2
  • Lot Features City Lot, Subdivision
  • Lot Size Dimensions95 X 166
  • Parking Features Attached, Garage
  • Patio And Porch Features Covered, Porch, Screened
  • Pool Features Community, Pool
  • PSewer Public Sewer
  • Utilities Electricity Available, Natural Gas Available
  • Water Source Public
  • Community Features Pool
  • Elementary School Wilson Elementary School
  • High School Park Crossing High School
  • Middle Or Junior School Carr Middle School
  • MLS Area MajorMONT-E Mont County
  • MLS Area MinorMontgomery Area Association of Realtors
  • Builder Name Lowder New Homes
  • MLS Status Active
  • PermissionIDX
  • Year Built Details Completed
  • Year Built Source Builder
  • Association Fee$408
  • Association Fee Frequency Semi Annually
  • Possession Close Of Escrow

Directions

From Taylor Rd., turn on Highland Blvd, left on Young Crossing once at the Round-a-bout: Go into Piedmont Place on Twin Gables Dr-- home is on the left.

Request More Information

The data relating to real estate for sale on this web site comes in part from the IDX Program of the Multiple Listing Service, Inc. of Montgomery Area Association of REALTORS® Inc. Real estate listings held by brokerage firms other than Builder New Homes are governed by MLS Rules and Regulations and detailed information about them includes the name of the listing companies. This information provided is for consumers' personal, non-commercial use and may not be used for any purpose other than to identify prospective properties consumers may be interested in purchasing. Information herein is believed to be accurate and timely, but no warranty as such is expressed or implied. Listing information © 2018 Multiple Listing Service, inc. of Montgomery Area Association of REALTORS®, Inc.

Building Legacies To Last a Lifetime!

DISCLAIMER: This website content is provided on an "as is" basis and without warranties of any kind either expressed or implied. All information is believed to be accurate but is not guaranteed and is subject to change. The content on this website is provided solely for your information and convenience. Prices and dimensions are subject to change and are not final representations.